大田区にある鳥海工務店の倉庫兼アパートです。この建物は2階建て住宅:大田区羽田のS様邸
と隣のため、外側を先行して仕上げました。
(通常の仕上げ方と逆です。)
土地スペックは約26坪、建物は100m2
3室(ワンルーム)です。
インターネット環境・地デジ対応・
TVモニター付きインターフォン・各専用
階段・エアコン等完備しています!
場所は京急大鳥居駅より徒歩5分ぐらいのところです。
アパートに関するお問合せは問合せフォームよりお願い致します。
以下、完成までの様子をご覧いただけます。
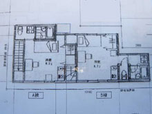
【倉庫兼アパート:東京都大田区の平面図】
![]() 1階平面図 | ![]() 2階平面図 |
【倉庫兼アパート:東京都大田区の工事写真】
![]() 基礎の状況 | ![]() 途中経過の様子 |
![]() 遠くから見た上棟の様子 | ![]() 1/1の様子1 |
![]() 1/1の様子2 | ![]() 1/30の様子 |
![]() 外観の様子1 | ![]() 外観の様子2 |
![]() 外観の様子3 | ![]() 外観の様子4 |
![]() 床下断熱材1 | ![]() 床下断熱材2 |
![]() 床下の遮音シート1 | ![]() 床下の遮音シート2 |
![]() 外観の様子1 | ![]() 外観の様子2 |
![]() ミニキッチン 製作途中1 | ![]() ミニキッチン 製作途中2 |
![]() クロス下地 パテ打ち作業1 | ![]() クロス下地 パテ打ち作業2 |
![]() クロス工事1 | ![]() クロス工事2 |
![]() 101号室の内装 | ![]() 201号室の内装 |
![]() 201号室の内装 | ![]() 202号室の内装 |
![]() 外観の様子 | まだ養生中です。 |
養生ベニアをとっていよいよ4/30検査です(工事完了)。
モノトーンで仕上げました。シックな色合いの床がポイントです。
![]() ワンルームアパート室内 | ![]() ワンルームアパート室内 |
![]() ワンルームアパート室内 | ![]() ワンルームアパート室内 |
![]() ワンルームアパート外観 | ![]() ワンルームアパート外観 |
![]() ワンルームアパート外観 | ![]() ワンルームアパート外観 |
物件スペック
・所在地/東京都大田区
・規模/地上2階
・敷地面積/26坪
・延床面積/約100m2
・施工/有限会社 鳥海工務店 ・竣工/2009年4月
・規模/地上2階
・敷地面積/26坪
・延床面積/約100m2
・施工/有限会社 鳥海工務店 ・竣工/2009年4月
大田区:子育て世帯が安心して暮らせる2階建て注文住宅
大田区で戸建て住宅の全面リフォーム
築約35年の住宅の内装を全面リフォーム
既存の住宅を解体し、新築住宅に建て替え
キッチンや畳張替えなどのアパート全面リフォーム
大田区で全面リフォーム 床張り替え、土間設置、外壁塗装など店舗を改修しました
野田市の空き屋を全面リフォーム T様邸
東京都大田区のモノトーンの外観のアパート併用住宅(アパート兼倉庫) バードハイム
大田区の天井・壁・床張替えと水周りリフォーム
大田区の築30年の物件を全面リフォームとクリーニング
外壁リフォーム・内装リフォーム:大田区
大田区の機能ごとにスペースを分けたマンションリフォーム:間取り変更スケルトンリフォーム
大田区の築40年の物件アパート全面リフォーム S様邸
東京都大田区の2階建て住宅 S様邸










































外装・屋根